Casa in legno massicccio Giubiasco
600'000.00
Casa in legno massiccio Giubiasco
La casa unifamiliare contigua, costruita nel 2006, interamente in legno massiccio, si trova nel cuore di una zona residenziale pregiata, a due passi dalle scuole dell’infanzia, elementari e medie.
Ha una superficie abitabile di circa 140 mq + balcone e veranda + giardino privato di ca. 50 mq
Posteggio coperto per 2 posti auto.
Volume complessivo ca. 640 m³
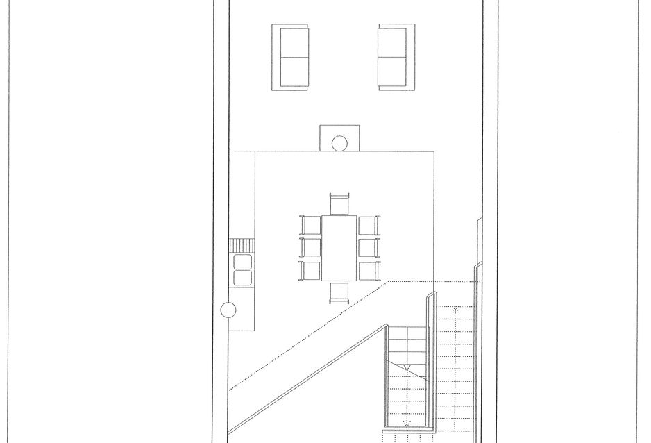
L’abitazione è così disposta:
Piano Terra:
• Veranda d’ingresso
• Due camere
• Bagno con ampia vasca idromassaggio
• Spazio ingresso/disimpegno
• Seconda veranda con accesso al giardino
1° Piano:
• Ampia zona soggiorno-pranzo-cucina con camino
• Balcone soleggiato
2° Piano:
• Ampia camera
• Bagno con doccia e WC
La casa necessita di importanti lavori di manutenzione, ma offre un potenziale unico per chi cerca comfort, calore e un contesto tranquillo e familiare.
Prezzo: CHF 600'000.00
Camere
3
Locali
4.5
Bagni
2
MQ
140
Ubicazione
Giubiasco - Via Bonasco 10C
Indietro:
















